WINTER 2024-SPRING 2025

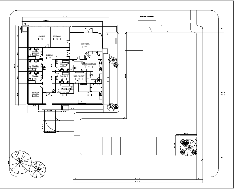
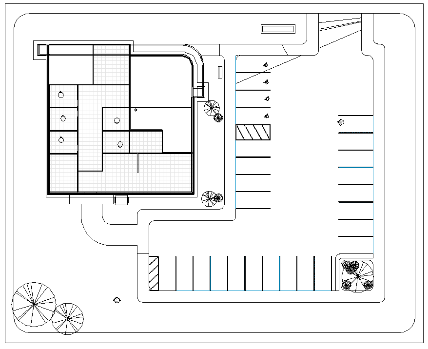
Commercial Clinic

During my junior year, I completed a project that inspired me to design a building no one in my class had previously attempted: a clinic. This project was extremely challenging, as I had no prior experience in designing medical facilities. It definitely pushed me out of my comfort zone. While I'm sure there are inaccuracies in my work, this project helped me grow immensely, particularly in terms of site details and furnishings.

Previous
Previous

Residential Home