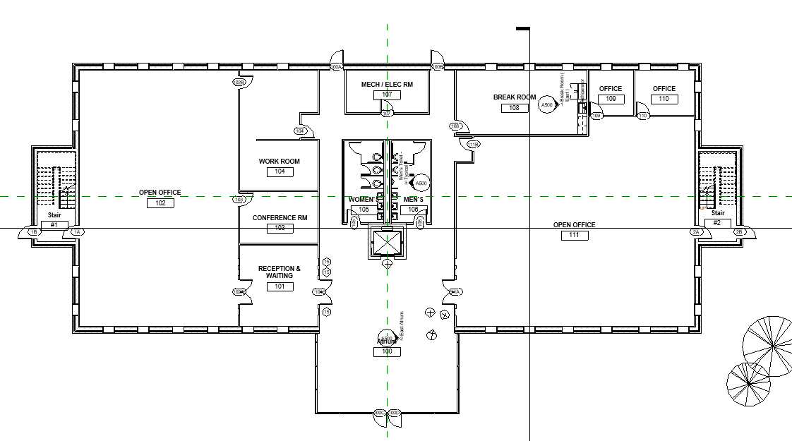
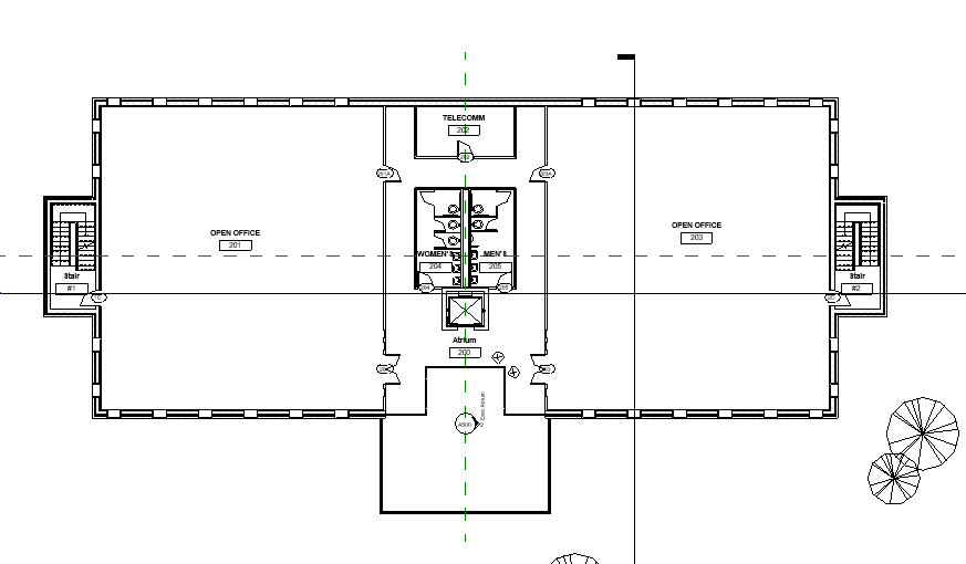
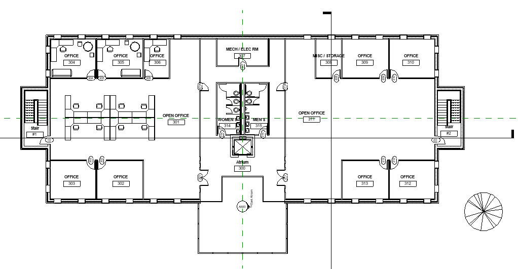
Large Office Building

I completed this project during the first semester of my sophomore year. It was intimidating because I had never designed a building of this size before; however, this project helped me appreciate the experience of building on a larger scale.


8/14/2023 - 12/21/2023

Next
Next

Commercial Law Office