FALL 2024-SPRING 2025

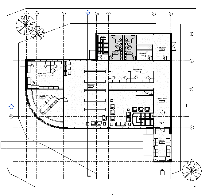
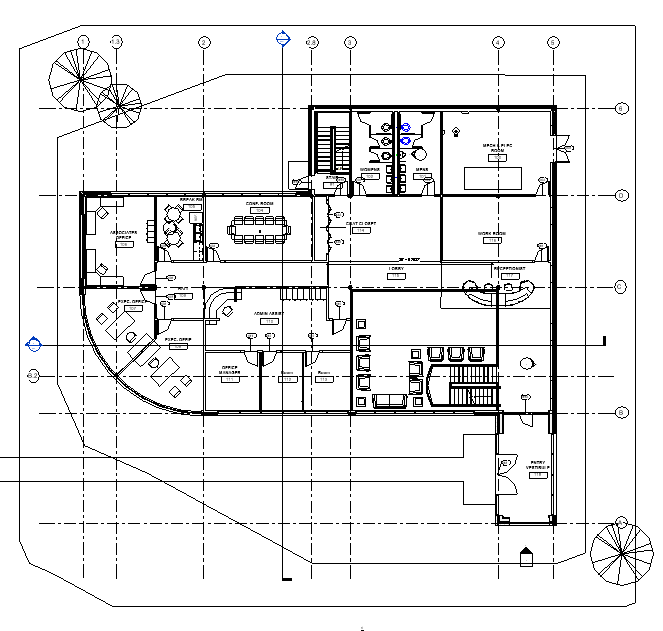
COMMERCIAL Law Office

This was my most recent and final textbook-based project. Although our instructor granted us creative freedom in various aspects of the project, such as the furnishings and the pattern of the exterior walls.

Previous
Previous

Large Office Building

Next
Next

Small Office Building