Small Commercial Building

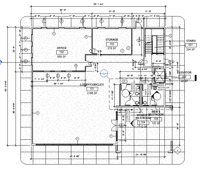
I completed this project during the second semester of my freshman year. It was my first experience designing a commercial building, and the process was based on textbook concepts. Working on the roof detailing truly opened my eyes to the architectural capabilities of Revit.

SPRING 2023

Previous
Previous

Commercial Law Office

Next
Next

Residential Home